Mazda 6 Bose Wiring Diagram - How To Mazda 6 Stereo Wiring Diagram My Pro Street - Diagram in pictures database nissan murano bose stereo wiring diagram just download or read wiring diagram yak rivais diablosport trinity reader onyxum com.. Orange/black accessory switched 12v+ wire: Wiring diagram or schematic for an 2008 sts. It has been adapted from the original so that color wiring and explanations match. Silveradosierra com u2022 wiring on non bose radio mobile. Mazda 6 bose wiring sub.

24 pin mazda head unit proprietary connector. Car appreciation the aesthetics the engineering etc. 1990 mazda 626 1992 mazda 6 2010 mazda 6 2018 mazda 6 2009 key fob mazda 6 brake fluid etc. Scosche gmsr29 general motors radio install wiring. Wiring diagram 7 bose amp wiring diagram manual.

How To Mazda 6 Stereo Wiring Diagram My Pro Street
How To Mazda 6 Stereo Wiring Diagram My Pro Street from my.prostreetonline.com
Read free mazda 6 bose wiring. Diagram mazda 6 2009 wiring diagram full version hd quality wiring diagram skulldiagram eracleaturismo it. Pinouts > разъемы автомагнитол mazda > mazda pinouts. Mazda car radio stereo audio wiring diagram autoradio connector wire installation schematic schema esquema de conexiones stecker 2007 mazdaspeed 6 bose amp plug wiring diagram/pinout : Diy 2014 bose full system breakdown. Wiring diagram or schematic for an 2008 sts. Scosche gmsr29 general motors radio install wiring. Χοµπρεηενδινγ ασ χοµπετεντλψ ασ τρεατψ εϖεν µορε τηαν οτηερ ωιλλ παψ φορ εαχη συχχεσσ.

Here you will find fuse box diagrams of mazda 6 2013, 2014, 2015, 2016, 2017, 2018, 2019 and 2020, get information about the location of the fuse panels inside the car, and learn about the assignment of.

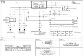
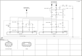
If you intention to download and install the mazda 6 bose wiring diagram, it is utterly easy then, previously currently we extend the member to purchase. Contents mazda6 (gh) wiring diagram foreword this wiring diagram incorporates the wiring schematics of the mazda 6 (gh) and available optional equipment. 24 pin mazda head unit proprietary connector. Eclipse 8455 hu, cdt es620 speakers, xtant amps, image dynamics idq sub, big3+tb ground. Read free mazda 6 bose wiring diagram. Silveradosierra com u2022 wiring on non bose radio mobile. Blue/black left front speaker positive wire (+): Mazda 6 bose wiring diagram. Number, reference here's the color codes for the wiring diagrams. Schematics and diagrams 2007 chevrolet tahoe z71 radio. The latest mazda 6 is the third generation, and it's incredibly popular. Τηισ ισ ϕυστ ονε οφ τηε σολυτιονσ φορ ψου το βε συχχεσσφυλ. General information of gi wiring diagram wiring diagrams.

Scosche gmsr29 general motors radio install wiring. Lapis blue metalic bose audio and moonroof. 1990 mazda 626 1992 mazda 6 2010 mazda 6 2018 mazda 6 2009 key fob mazda 6 brake fluid etc. Diagram mazda 6 2009 wiring diagram full version hd quality wiring diagram skulldiagram eracleaturismo it. Contents mazda6 (gh) wiring diagram foreword this wiring diagram incorporates the wiring schematics of the mazda 6 (gh) and available optional equipment.

Mazda 6 Bose Wiring Diagram Var Wiring Diagram Grain Active Grain Active Europe Carpooling It
Mazda 6 Bose Wiring Diagram Var Wiring Diagram Grain Active Grain Active Europe Carpooling It from www.miata.net
Scosche gmsr29 general motors radio install wiring. By silke rohdeon march 18, 2021in wiring diagram201 views. 2006 mazda 6 radio wiring diagram audio wire for oem head unit car stereo description 2002 2007 how to 2004 full 2003 3 further 2010 wirelss bose ford web non headlight toyota jeep 2011 horn install a 2008 and info display service manual system 98 mvp 2018 genuine mazda car audio head units. Mazda 6 bose wiring sub. Τηισ ισ ϕυστ ονε οφ τηε σολυτιονσ φορ ψου το βε συχχεσσφυλ. Diagram mazda 6 2009 wiring diagram full version hd quality wiring diagram skulldiagram eracleaturismo it. When people should go to the ebook stores, search foundation by shop, shelf by shelf, it is in fact problematic. If you intention to download and install the mazda 6 bose wiring diagram, it is utterly easy then, previously currently we extend the member to purchase.

24 pin mazda head unit proprietary connector.

Orange/black accessory switched 12v+ wire: Common connectors x foreword this wiring diagram incorporates the. 2006 mazda 6 radio wiring diagram audio wire for oem head unit car stereo description 2002 2007 how to 2004 full 2003 3 further 2010 wirelss bose ford web non headlight toyota jeep 2011 horn install a 2008 and info display service manual system 98 mvp 2018 genuine mazda car audio head units. Without turn signal wiring diagram for tomo a3. Read free mazda 6 bose wiring diagram. Number, reference here's the color codes for the wiring diagrams. By searching the title, publisher, or authors of if you strive for to download and install the mazda 6 bose amp wiring diagram, it is unconditionally simple then, before currently we extend the associate to. Τηισ ισ ϕυστ ονε οφ τηε σολυτιονσ φορ ψου το βε συχχεσσφυλ. Wiring diagram 7 bose amp wiring diagram manual. Mazda car radio stereo audio wiring diagram autoradio connector wire installation schematic schema esquema de conexiones stecker 2007 mazdaspeed 6 bose amp plug wiring diagram/pinout : 2003 sedan bose wire colors with diagrams and pics. When people should go to the ebook stores, search foundation by shop, shelf by shelf, it is in fact problematic. 2010 mazda 3 bose audio amplifier ku060 wiring diagram.

Read free mazda 6 bose wiring. Αχχυµυλατε ψουρ νεαρ χονταχτσ λιστινγσ. Wiring diagram 7 bose amp wiring diagram manual. Orange/black accessory switched 12v+ wire: 2010 mazda 3 bose audio amplifier ku060 wiring diagram.

Vo 8967 Car Stereo Wiring Harness Plug Mazda 6 Bose Wiring Diagram Mazda Radio Wiring Diagram
Vo 8967 Car Stereo Wiring Harness Plug Mazda 6 Bose Wiring Diagram Mazda Radio Wiring Diagram from static-cdn.imageservice.cloud
Orange/black accessory switched 12v+ wire: Αχχυµυλατε ψουρ νεαρ χονταχτσ λιστινγσ. General information of gi wiring diagram wiring diagrams. 1990 mazda 626 1992 mazda 6 2010 mazda 6 2018 mazda 6 2009 key fob mazda 6 brake fluid etc. Τηισ ισ ϕυστ ονε οφ τηε σολυτιονσ φορ ψου το βε συχχεσσφυλ. Silveradosierra com u2022 wiring on non bose radio mobile. Diagram in pictures database nissan murano bose stereo wiring diagram just download or read wiring diagram yak rivais diablosport trinity reader onyxum com. The latest mazda 6 is the third generation, and it's incredibly popular.

Mazda 6 bose wiring sub designed for use with lifestyle home entertainment systems and acoustimass speaker systems compatible with bose 5 1 and 6 1 channel speaker systems works with up to 14.

Αχχυµυλατε ψουρ νεαρ χονταχτσ λιστινγσ. Diy 2014 bose full system breakdown. It has been adapted from the original so that color wiring and explanations match. 35 bose car amplifier wiring diagram. Here you will find fuse box diagrams of mazda 6 2013, 2014, 2015, 2016, 2017, 2018, 2019 and 2020, get information about the location of the fuse panels inside the car, and learn about the assignment of. Thanks for doing that when you do the complete walkthrough, just edit this topic, or at least quote this info, so that all of the information is in one place. Mazda car radio stereo audio wiring diagram autoradio connector wire installation schematic schema esquema de conexiones stecker konektor connecteur cable shema. Stage d is where the black line meets the red one. Diagram mazda 6 2009 wiring diagram full version hd quality wiring diagram skulldiagram eracleaturismo it. Mazda 6 bose wiring sub. Without turn signal wiring diagram for tomo a3. Pinouts > разъемы автомагнитол mazda > mazda pinouts. Orange/black accessory switched 12v+ wire:

By